Insula delle Muse

The only residence among those belonging to the complex of the Case a Giardino to have a porticoed courtyard, this building also stands out from the others for its large size and the quality of the decorative programme.
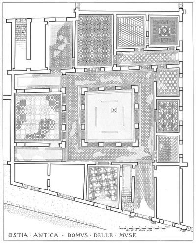
Plan of the insula with the mosaics
(O. Visca)
The building still preserves the mosaic floors of the Hadrianic phase (AD 130), with geometrical and figurative motifs chosen to reflect the importance of each room, and a set of wall paintings that are among the city’s most important.
View of the painted decoration of room D |
Detail of the figure of Apollo in room D |
Belonging to the original phase are the paintings with the cycle of Apollo and the Muses in the sitting room near the entrance (D), the decorations of the huge banqueting hall (triclinium) (E) and, in one of the private rooms (C), the paintings on a white ground with images linked to the god Dionysus.
The later renovations of part of the wall decorations indicate that the house remained in use at least until the 4th century AD.
View of the painted decoration of room C
See also:
- The Residential Districts of the Upper-Middle Class
- Domus di Amore e Psiche
- Terme del Mitra
- Complesso dei Mensores
- Caseggiato di Bacco e Arianna
- Serapeo
- Terme della Trinacria
- Casette Tipo
- Caseggiato del Serapide
- Terme dei Sette Sapienti
- Caseggiato degli Aurighi
- Case a Giardino
- Insula delle Ierodule
- Insula delle Pareti Gialle
- Insula delle Volte Dipinte
- Insula delle Muse
- Domus dei Dioscuri
- Domus del Ninfeo
- Cd. Palazzo Imperiale








